Casa indipendente in vendita

Alessandria, Sc per Mandrogne - Mandrogne
€ 75.000
Prezzo aggiornato
9 locali 9 locali
320 Mq 320 Mq
2 bagni 2 bagni

Casa indipendente in vendita

Alessandria, Sc per Mandrogne - Mandrogne

Descrizione annuncio

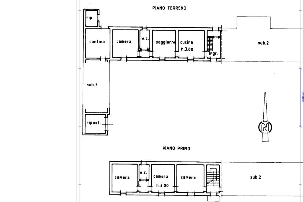
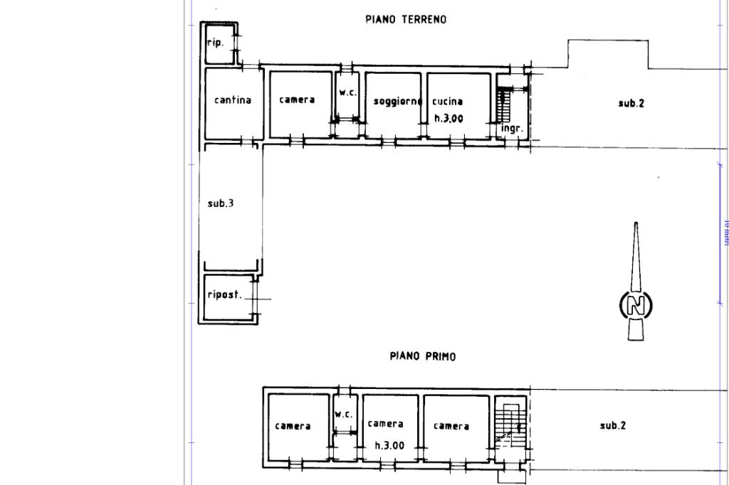
Casa Bifamiliare a Mandrogne


Nella quiete verde di Mandrogne, dove la tranquillità incontra il comfort quotidiano, proponiamo una casa bifamiliare dalle dimensioni importanti, ideale per chi desidera spazio, indipendenza e la possibilità di gestire due unità abitative nello stesso contesto. Una soluzione perfetta per famiglie numerose o per chi cerca un immobile versatile, capace di adattarsi alle esigenze di oggi.

Il corpo principale della casa accoglie con un ingresso che si apre su un disimpegno funzionale e conduce a una zona giorno ampia e luminosa, dove la cucina abitabile, la sala da pranzo e l’ampio soggiorno creano ambienti caldi e conviviali, pensati per essere vissuti davvero. Il bagno con doccia completa il piano con praticità e comfort.

La scala conduce al piano superiore, dove la zona notte offre tre camere matrimoniali di ottima metratura, un piccolo balcone che porta luce e respiro all’ambiente e un bagno con vasca, ideale per momenti di relax.

A completare il potenziale della proprietà, un secondo alloggio al piano terra con ingresso indipendente, totalmente ristrutturato e caratterizzato da una cucina abitabile accogliente, un soggiorno luminoso impreziosito da un camino, una camera matrimoniale e un bagno con doccia. Uno spazio perfetto per ospiti, famigliari o per chi desidera un’abitazione aggiuntiva sempre pronta all’uso.

L’esterno rappresenta il vero valore aggiunto di questa proposta, con un giardino ampio e curato su entrambi i lati della casa, perfetto per chi ama vivere all’aperto.

Le persiane recentemente sostituite garantiscono una miglior efficienza e un aspetto più moderno. Due box auto e un grande ricovero attrezzi completano la proprietà, aggiungendo ulteriore comodità e funzionalità.

Una casa che trasmette calore, spazio e potenzialità, pronta ad accogliere nuovi progetti e nuovi momenti di vita.

Mostra tutto

Nelle vicinanze

Scuole Scuole
Scuola Elementare e per l'Infanzia Paolo Maldini
530 m
Scuola Materna Vignetta
2,2 Km
Scuola Primaria Ettore Bravetta
2,7 Km
Farmacia Farmacia
Farmacia Damilano
660 m
Farmacia Dattrino
2,5 Km
Bar Bar
Bar Dante
520 m
Grand
2,2 Km
Luna Rossa
2,7 Km
Bar 99
2,7 Km
Ristoranti Ristoranti
Pizzeria Trattoria Al Campo
680 m
Trattoria del Popolo
2,1 Km
La Voglia Matta
2,2 Km
Agriturismo Vigna Santa
2,4 Km
Il Crotto
2,9 Km
Mostra tutto

Caratteristiche

Rif.:
61148779
Piano:
2 di 2 (Piano su più livelli)
Box:
2
Posti auto:
3
Balconi:
1
Camere da letto:
4
Mostra tutto
Prezzo Prezzo
€ 75.000
Rata mutuo Rata mutuo
€ 353 / mese
Spese annue Spese annue
€ 0
Proponi il tuo prezzoProponi il tuo prezzo
Immobile valutato con T·Valuta

Classe Energetica

E
E
E
E
E
E
E
E
E
EP globale non rinnovabile:
227.52 kW h/m² anno
EP globale rinnovabile:
54.83 kW h/m² anno
EP invernale del fabbricato:
EP estiva del fabbricato:
Anno di costruzione:
1967
Riscaldamento:
Autonomo
Tipo impianto:
A radiatori
Tipo alimentazione:
Metano

Prezzo ridotto di €1 (6%%)

Ti interessa visionare l'immobile?

Fissa un appuntamento  Fissa un appuntamento

Richiedi informazioni

Clicca su Leggi per aprire l'informativa
* Questi campi sono obbligatori

Calcola il tuo mutuo

Semplice e senza impegno
Anticipo

( % )
Mutuo

( % )

pochi semplici passi

inserisci i tuoi dati
Questionario completato
Grazie per aver richiesto un appuntamento senza impegno con un nostro Consulente del Credito e Assicurativo.

Hai inserito correttamente tutti i dati necessari e a breve riceverai una e-mail con un link da convalidare per inviare i tuoi dati.
Affiliato
T.c. Group Snc
Via Genova, 163 15122 Alessandria (AL)

Il nostro staff


  • Valentina Tempesta
    Affiliata
Via Genova, 163 15122 Alessandria (AL)
Zona: Alessandria - Fraz. Spinetta Marengo
Mostra su mappa
Orari: Lun. 9.00-13.00/15.00-20.00 Mar. 9.00-13.00/15.00-20.00 Mer. 9.00-13.00/15.00-20.00 Gio. 9.00-13.00/15.00-20.00 Ven. 9.00-13.00/15.00-20.00 Sab. 9.00-13.00/15.00-18.00
Affiliato
T.c. Group Snc
Via Genova, 163 15122 Alessandria (AL)

2026 Tecnocasa Franchising S.p.A. - P. IVA 08365160152 - Via Monte Bianco 60/A 20089 Rozzano (MI). Ogni agenzia ha un proprio titolare ed è autonoma. Privacy policy | Policy utilizzo | Cookie policy