Casa semindipendente in vendita

Alessandria, Via Desaix - Castelceriolo
€ 45.000
5 locali 5 locali
150 Mq 150 Mq
2 bagni 2 bagni

Casa semindipendente in vendita

Alessandria, Via Desaix - Castelceriolo

Descrizione annuncio

Castelceriolo - Casa semindipendente

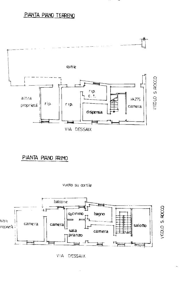
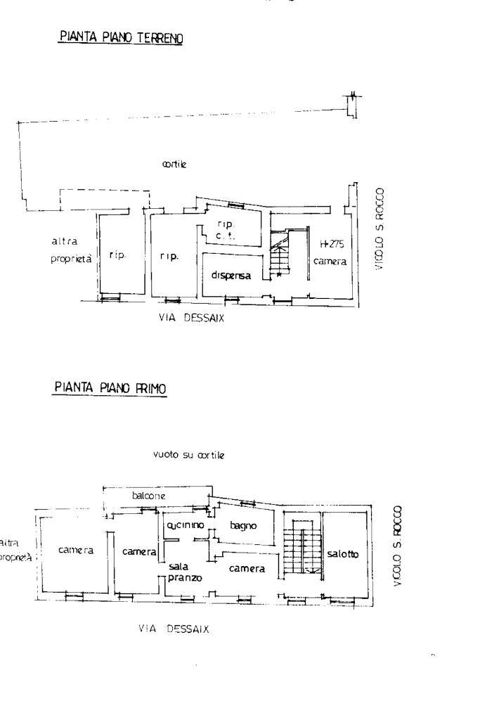
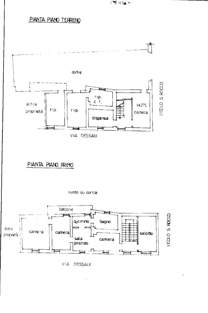
In posizione tranquilla a Castelceriolo, a pochi minuti da Alessandria proponiamo casa semindipendente con cortile con diritto di passaggio.
Al piano terra l'immobile si sviluppa con ingresso su disimpegno, cucina, comodo soggiorno, bagno con doccia, due camere da adibire secondo le proprie esigenze.
Salendo al primo piano troviamo tre camere da letto, soggiorno con cucina a vista e un comodo bagno.
Completa il piano un comodo balcone verandato.
L'abitazione include un cortile di proprietà con diritto di passaggio.

Mostra tutto

Nelle vicinanze

Trasporto pubblico Trasporto pubblico
Trasporto pubblico
140 m
Ricariche auto elettriche Ricariche auto elettriche
Concessionario Nissan Resicar S.R.L Alessandria
2,9 Km
Scuole Scuole
Scuola Elementare Giuseppe Montanari
40 m
Scuole
50 m
Scuola dell'Infanzia Franca Novelli
50 m
Farmacia Farmacia
Farmacia Ghislieri
220 m
Supermercati Supermercati
Minimarket
210 m
Bar Bar
Bar Macallè
130 m
Cochi Bar
2,8 Km
3 Bar's
2,9 Km
Ristoranti Ristoranti
Bar Trattoria Pancaffè
140 m
Trattoria La Stazione
2,5 Km
Al Bacioch
2,6 Km
Ristoranti
2,7 Km
Castello di Pavone
2,7 Km
Mostra tutto

Caratteristiche

Rif.:
61131253
Piano:
1 di 2 (Piano terra)
Balconi:
1
Camere da letto:
4
Arredamento:
Assente
Condizionamento:
Assente
Mostra tutto
Prezzo Prezzo
€ 45.000
Rata mutuo Rata mutuo
€ 213 / mese
Spese annue Spese annue
€ 0
Proponi il tuo prezzoProponi il tuo prezzo
Immobile valutato con T·Valuta

Classe Energetica

G
G
G
G
G
G
G
G
G
EP globale non rinnovabile:
546.29 kW h/m² anno
EP globale rinnovabile:
1.14 kW h/m² anno
EP invernale del fabbricato:
EP estiva del fabbricato:
Anno di costruzione:
1960
Riscaldamento:
Autonomo
Tipo impianto:
A radiatori
Tipo alimentazione:
Metano

Ti interessa visionare l'immobile?

Fissa un appuntamento  Fissa un appuntamento

Richiedi informazioni

Clicca su Leggi per aprire l'informativa
* Questi campi sono obbligatori

Calcola il tuo mutuo

Semplice e senza impegno
Anticipo

( % )
Mutuo

( % )

pochi semplici passi

inserisci i tuoi dati
Questionario completato
Grazie per aver richiesto un appuntamento senza impegno con un nostro Consulente del Credito e Assicurativo.

Hai inserito correttamente tutti i dati necessari e a breve riceverai una e-mail con un link da convalidare per inviare i tuoi dati.
Affiliato
T.c. Group Snc
Via Genova, 163 15122 Alessandria (AL)

Il nostro staff


  • Valentina Tempesta
    Affiliata
Via Genova, 163 15122 Alessandria (AL)
Zona: Alessandria - Fraz. Spinetta Marengo
Mostra su mappa
Orari: Lun. 9.00-13.00/15.00-20.00 Mar. 9.00-13.00/15.00-20.00 Mer. 9.00-13.00/15.00-20.00 Gio. 9.00-13.00/15.00-20.00 Ven. 9.00-13.00/15.00-20.00 Sab. 9.00-13.00/15.00-18.00
Affiliato
T.c. Group Snc
Via Genova, 163 15122 Alessandria (AL)

2026 Tecnocasa Franchising S.p.A. - P. IVA 08365160152 - Via Monte Bianco 60/A 20089 Rozzano (MI). Ogni agenzia ha un proprio titolare ed è autonoma. Privacy policy | Policy utilizzo | Cookie policy