Casa semindipendente in vendita

Alessandria, Strada Raggi - Mandrogne
€ 169.000
6 locali 6 locali
160 Mq 160 Mq
2 bagni 2 bagni

Casa semindipendente in vendita

Alessandria, Strada Raggi - Mandrogne

Descrizione annuncio

Mandrogne -

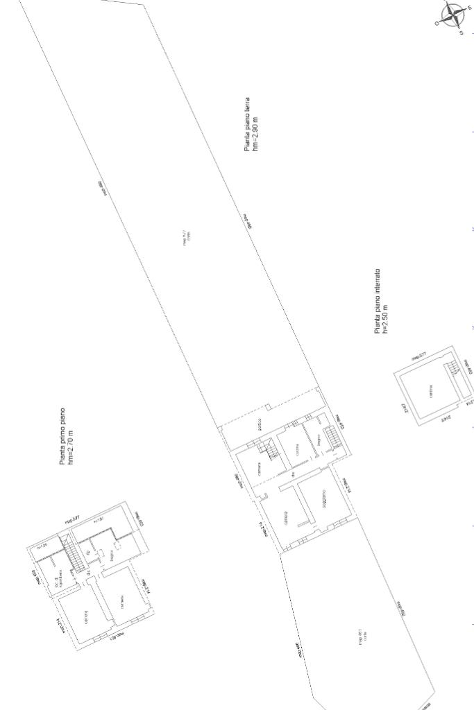
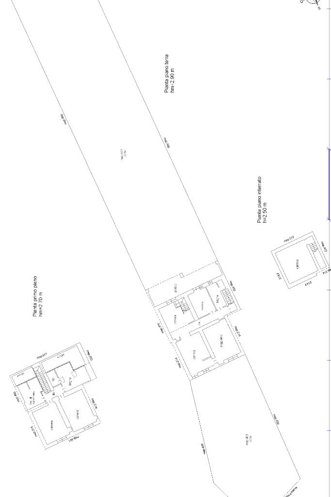
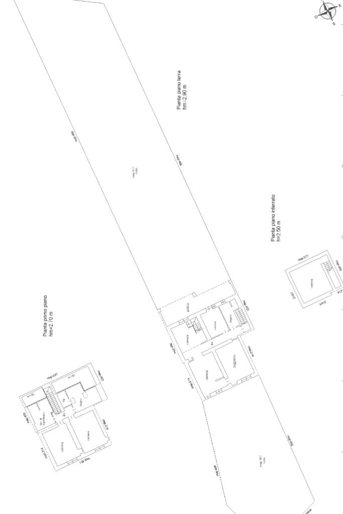
In una posizione tranquilla di Mandrogne, proponiamo una casa libera su due lati che conquista per i suoi spazi ampi e ben distribuiti, oltre che per il doppio giardino di generose dimensioni che la rende perfetta per chi ama vivere all’aperto. L’abitazione si presenta in ottimo stato di manutenzione ed è pronta per essere abitata senza alcun intervento, offrendo fin da subito comfort e funzionalità.

Al piano terra ci accoglie un soggiorno con camino che regala calore e atmosfera, una sala da pranzo accogliente, una cucina abitabile con portafinestra che conduce al secondo giardino, un bagno con doccia e una stanza versatile attualmente adibita a studio, facilmente trasformabile in camera da letto. Salendo al piano superiore troviamo due ampie camere matrimoniali, un bagno con vasca, una cabina armadio e un ripostiglio che aggiungono praticità agli spazi.

Il retro della casa è valorizzato da un grande giardino e da un portico coperto che diventa il luogo ideale per pranzi e cene all’aperto. Una soluzione abitativa che unisce il comfort degli interni alla bellezza degli spazi esterni, perfetta per chi cerca una casa pronta da vivere in un contesto sereno e ben collegato.

Mostra tutto

Nelle vicinanze

Trasporto pubblico Trasporto pubblico
Trasporto pubblico
2,7 Km
San Giuliano Piemonte
San Giuliano Piemonte
2,8 Km
Scuole Scuole
Scuola Elementare e per l'Infanzia Paolo Maldini
620 m
Scuole
2,4 Km
Scuole Elementari e Medie Angelo e Vincenza Prato
2,4 Km
Farmacia Farmacia
Farmacia Damilano
520 m
Farmacia San Giuliano
2,6 Km
Bar Bar
Bar Dante
650 m
Dal Cicon
2,6 Km
Desaix Caffè
2,7 Km
Ristoranti Ristoranti
Pizzeria Trattoria Al Campo
480 m
Agriturismpo Eden Ranch
2,2 Km
Agriturismo Vigna Santa
2,5 Km
Trattoria del Popolo
2,9 Km
Mostra tutto

Caratteristiche

Rif.:
61120970
Piano:
1 di 1 (Piano su più livelli)
Posti auto:
1
Camere da letto:
2
Arredamento:
Assente
Condizionamento:
Assente
Mostra tutto
Prezzo Prezzo
€ 169.000
Rata mutuo Rata mutuo
€ 781 / mese
Spese annue Spese annue
€ 0
Proponi il tuo prezzoProponi il tuo prezzo
Immobile valutato con TecnoValore

Classe Energetica

F
F
F
F
F
F
F
F
F
EP invernale del fabbricato:
EP estiva del fabbricato:
Anno di costruzione:
1967
Riscaldamento:
Autonomo
Tipo impianto:
A radiatori
Tipo alimentazione:
Metano

Ti interessa visionare l'immobile?

Fissa un appuntamento  Fissa un appuntamento

Richiedi informazioni

* Questi campi sono obbligatori

Calcola il tuo mutuo

Semplice e senza impegno
Anticipo

( % )
Mutuo

( % )

pochi semplici passi

inserisci i tuoi dati
Questionario completato
Grazie per aver richiesto un appuntamento senza impegno con un nostro Consulente del Credito e Assicurativo.

Hai inserito correttamente tutti i dati necessari e a breve riceverai una e-mail con un link da convalidare per inviare i tuoi dati.
Affiliato
T.c. Group Snc
Via Genova, 163 15122 Alessandria (AL)

Il nostro staff


  • Valentina Tempesta
    Affiliata
Via Genova, 163 15122 Alessandria (AL)
Zona: Alessandria - Fraz. Spinetta Marengo
Mostra su mappa
Orari: Lun. 9.00-13.00/15.00-20.00 Mar. 9.00-13.00/15.00-20.00 Mer. 9.00-13.00/15.00-20.00 Gio. 9.00-13.00/15.00-20.00 Ven. 9.00-13.00/15.00-20.00 Sab. 9.00-13.00/15.00-18.00
Affiliato
T.c. Group Snc
Via Genova, 163 15122 Alessandria (AL)

2025 Tecnocasa Franchising S.p.A. - P. IVA 08365160152 - Via Monte Bianco 60/A 20089 Rozzano (MI). Ogni agenzia ha un proprio titolare ed è autonoma. Privacy policy | Policy utilizzo | Cookie policy